Starvation Stables
Talygarn, Nr Pontyclun

 

The development had previously been submitted for Planning Consent but had been refused. We were consulted with regards to making a fresh application which addressed the failures in the previous application.

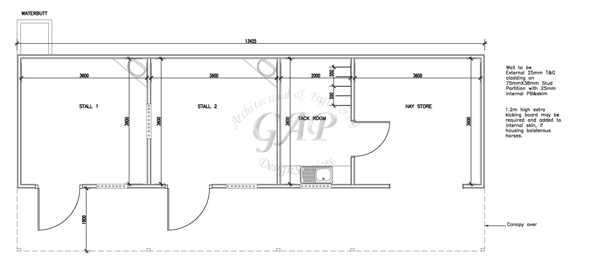
Through discussions with the LPA Officers a boundary fence which was both visually acceptable and suited the needs of the Client was derived and minor alterations made to the stable block itself were put forward by us in order to make the block more practical for the purposes of its use. These included making the tack room larger to facilitate the ease of carrying and storage of saddlery. Another fundamental change was that the stable doors were changed to facilitate the housing of different sizes of horse, that is to say that two different heights of door can be hung to allow horses of different heights to be able to be housed and yet be able to look out without the risk of chafing their necks.

 

 

By simply re-writing the supporting statement in a way that the LPA Officers could understand the equestrian needs and particular design requirements together with making practical changes in design through discussion and compromise rather than confrontation we were able to obtain a satisfactory out-come for our Client. This was our second successful re-application for this Client, a third re-application is currently being considered for appeal having failed a second time.